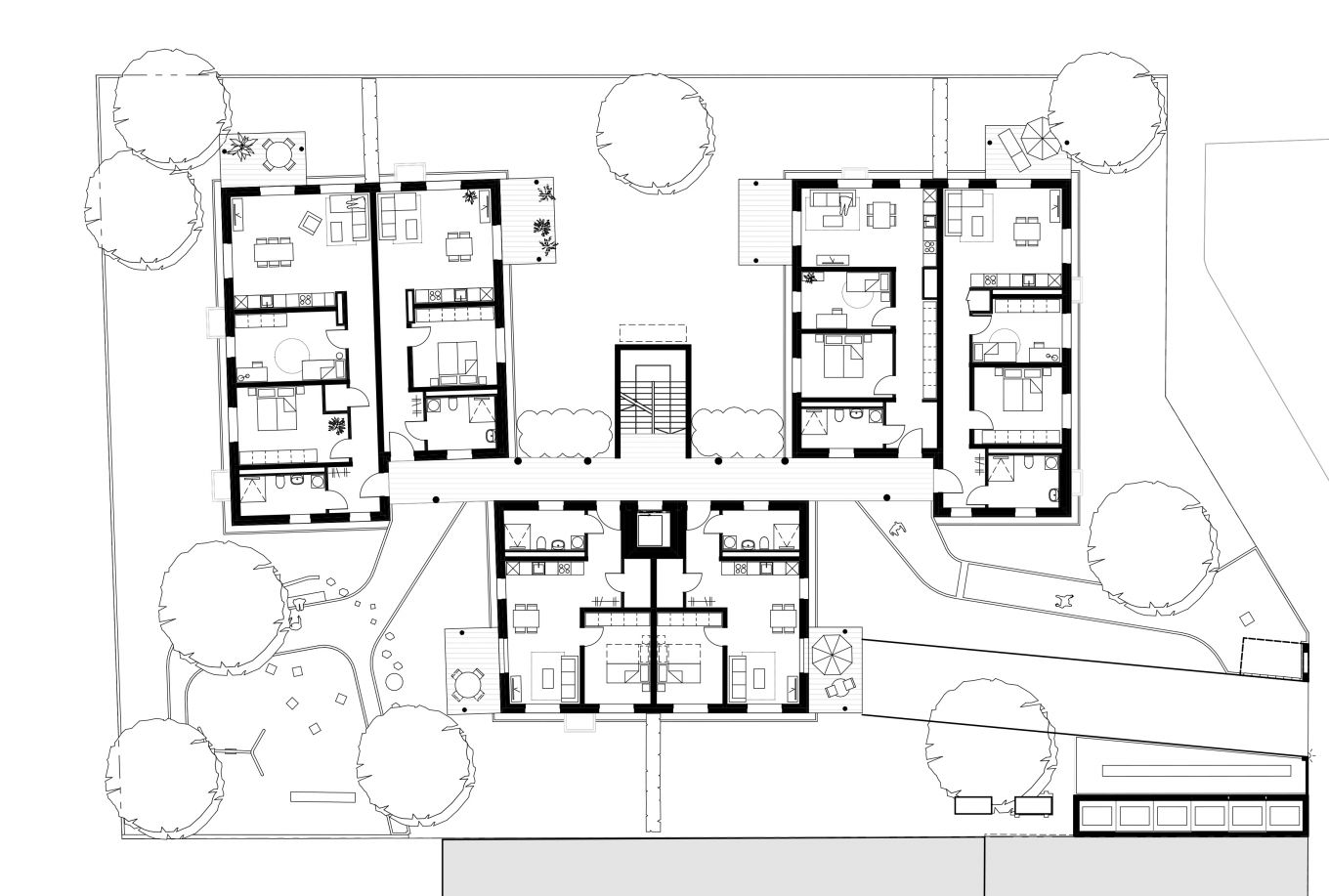
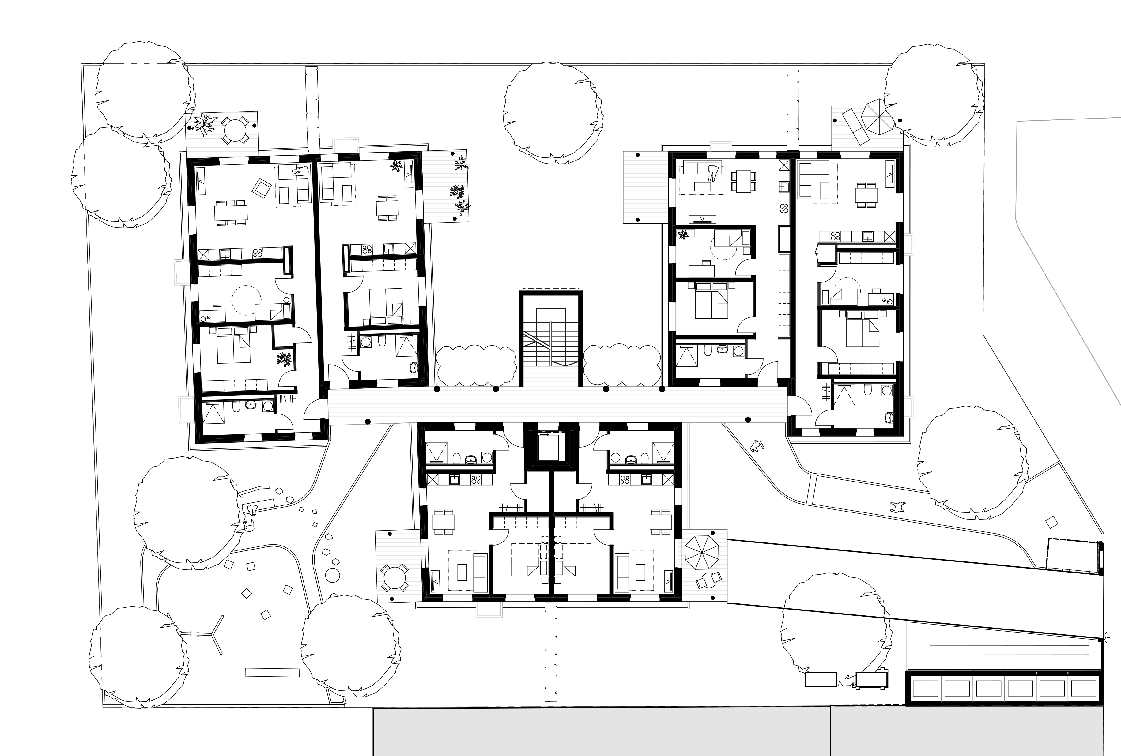
Wohnhaus Kretzerstraße

Köln Nippes, 2023-heute

 

Blick aus der Kretzerstraße
Erdgeschoss
Blick aus den Gärten

 

 

Nutzung

Wohnen
Verfahrensart Direktauftrag
Zeitraum 2023 - heute
Wohneinheiten

25

Ort Köln Nippes
Bauherr evohaus GmbH
Team

J. Goldbach, M. Hanen, D. Quiel

Visualisierungen

bloomimages

   

Zurück

Weitere Projekte